- Woonoppervlakte
- Circa 131 m²
- Perceeloppervlakte
- Circa 173 m²
- Bouwjaar
- Gebouwd in 2010
- Aantal kamers
- 5 kamers (4 slaapkamers)
Fraaie tussenwoning met vier slaapkamers en heerlijk vlonderterras aan het water
Centraal gelegen, In een charmante, ruim opgezette straat, vindt u deze fraaie tussenwoning met vier slaapkamers en een werkelijk heerlijke achtertuin die grenst aan het water.
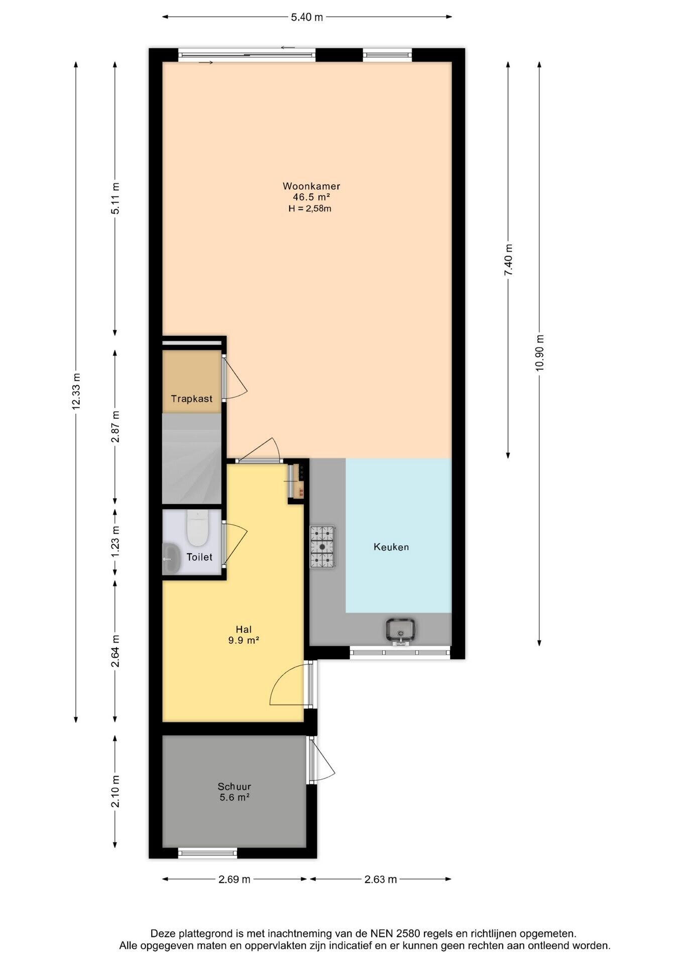
Lichte woonkamer, open keuken
Vanuit de straat ziet u het huis, een tikkeltje verscholen tussen twee hagen en een boompje. De voortuin is daardoor een fijne, besloten plek om te zitten. In de ruime hal ligt een eikenhouten parketvloer die alle vertrekken op de begane grond met elkaar verbindt.
Als u de woonkamer binnenloopt en even om u heen kijkt, ziet u dat zowel aan de achterkant als aan de voorzijde het plafond verspringt. De woonkamer krijgt hierdoor een ruimtelijk en speels karakter. Aan de achterzijde is er veel lichtinval en wordt u als vanzelf naar de achtertuin getrokken. Eerst laten we u graag de open keuken zien. Deze heeft een L-vorm, waardoor u veel bewegingsruimte heeft. U beschikt hier over veel kastruimte, een kunststof werkblad, een 5-pits gasfornuis en diverse inbouwapparatuur.
Vier slaapkamers
De overloop op de eerste verdieping geeft u toegang tot twee fijne slaapkamers. De grootste kijkt uit op de achtertuin, de andere op de straat aan de voorzijde van het huis. De ramen zijn voorzien van horren.
Daarnaast vindt u hier ook de badkamer, die is uitgevoerd in zwart-wit tinten en uitgerust met een vaste wastafel, instapdouche en het tweede toilet. Wie even naar de ruimte kijkt, ziet dat hier alle mogelijkheden zijn voor een stijlvolle modernisering met bijvoorbeeld een ligbad erbij.
Op de tweede verdieping beschikt u over nog eens twee lichte en volwaardige slaapkamers. Deze hebben een schuin plafond; de slaapkamer aan de voorzijde heeft bovendien ramen van vloer tot plafond.
De witgoedopstelling en cv-ketel zijn ondergebracht in een aparte ruimte, die tevens als extra berging dienst doet.
Heerlijk vlonderterras aan het water, met vrij uitzicht
Terug op de begane grond is het nu de hoogste tijd om de parel van deze woning te bekijken: de achtertuin. Die bestaat uit een tegelterras tegen de achtergevel aan, een (kunst)grasstrook en een verlaagd vlonderterras direct aan het water. Volop mogelijkheden om verschillende zitjes te creëren en hier een het-hele-jaar-door-vakantie-beleving van te maken. Vogels, vissen, vrij uitzicht, heerlijk!
Aan de voorkant van de woning is een stenen berging voor uw fietsen en tuingereedschap. Parkeren kunt u in de straat.
Heel centraal gelegen
De ligging van deze woning is perfect. Winkels, kinderopvang en scholen zijn nabij; de British school is zelfs om de hoek. Een speelveldje vindt u naast het huis. Speeltuintjes en een kinderboerderij zijn er op loopafstand en dat geldt ook voor het openbaar vervoer. De uitvalswegen A4, A12 en A13 liggen op een paar autominuten. Met de fiets bent u in korte tijd in de stad of in het groene buitengebied, waaronder het Westerpark Zoetermeer en natuurlijk de Nieuwe Driemanspolder.
Samengevat:
• Centraal gelegen tussenwoning met aan weerszijden veel ruimte
• Woonoppervlak ca. 130,2 m², inhoud woning 475 m³, gemeten volgens NEN2580
• Perceelgrootte 173 m², erfpacht eeuwigdurend afgekocht (geen extra kosten)
• Ruime hal met toilet en op maat gemaakte kast.
• Eiken parketvloer op de begane grond
• Sfeervolle en ruime woonkamer
• Open, L-vormige keuken met 5-pits gasfornuis en diverse inbouwapparatuur
• Twee lichte slaapkamers op de eerste verdieping
• Badkamer met instapdouche, vaste wastafel en tweede toilet
• Tweede verdieping met twee slaapkamers en separate ruimte voor de witgoedopstelling, de cv-ketel Intergas (2010) en de MV-box
• Laminaatvloeren op beide verdiepingen
• Horren in alle ramen van de eerste verdieping en in de tuindeur
• Heerlijke achtertuin met diverse zitjes en vrij uitzicht; verlaagd vlonderterras aan het water
• Stenen berging aan de voorzijde van de woning; parkeermogelijkheden in de straat
• Schilderwerk buitenzijde bijgewerkt in 2025, schilderwerk binnen uitgevoerd in december 2024
• Centraal gelegen nabij alle faciliteiten en openbaar vervoer
• Diverse scholen nabij waaronder de British School (BSN)- tevens 5 minuten fietsen naar het winkelcentrum
• Opgang naar diverse uitvalswegen A4/A12/A13 in een paar minuten rijden
• Oplevering in overleg
Is uw interesse gewekt?
Wacht niet te lang en bel Makelaarscentrum Leidschenveen voor het maken van een afspraak.
De informatie is met zorg samengesteld, aan de juistheid kunnen echter geen rechten worden ontleend. Alle opgegeven maten en oppervlakten zijn indicatief. De woning is gemeten met gebruikmaking van de Meetinstructie, die is gebaseerd op de normen zoals vastgelegd in NEN 2580. De algemene verkoopvoorwaarden staan vermeld op onze website, wij werken conform de Algemene Consumentenvoorwaarden van Vastgoed Nederland. Heeft u vragen over dit object of over onze dienstverlening neemt u dan gerust contact met ons op.
Bel ons voor het maken van een afspraak of schakel direct uw eigen aankoopmakelaar in. Uw aankoopmakelaar komt op voor uw belang en bespaart u veel tijd, geld en zorgen. Lees de volledige omschrijving
Overdracht
- Vraagprijs
- € 599.000 k.k.
- Status
- Verkocht
Bouw
- Object type
- Eengezinswoning, tussenwoning
- Soort bouw
- Bestaande bouw
- Bouwjaar
- 2010
- Soort dak
- Zadeldak bedekt met pannen
Oppervlakte en inhoud
- Woonoppervlakte
- 131 m²
- Perceeloppervlakte
- 173 m²
- Inhoud
- 475 m³
- Externe bergruimte
- 6 m²
Indeling
- Aantal kamers
- 5 kamers (4 slaapkamers)
- Aantal badkamers
- 1 badkamer en 1 apart toilet
- Badkamervoorzieningen
- Douche, toilet, en wastafel
- Aantal woonlagen
- 3 woonlagen
- Voorzieningen
- Glasvezelkabel, mechanische ventilatie, en TV kabel
Energie
- Energielabel
- A
- Energielabel registratie
- 14-10-2016
- Isolatie
- Dubbel glas, hr-glas, muurisolatie en volledig geïsoleerd
- Verwarming
- Cv-ketel
Buitenruimte
- Ligging
- Aan rustige weg, in woonwijk en vrij uitzicht
- Tuin
- Achtertuin en voortuin
- Afmetingen achtertuin
- 73 m² (12,35 meter diep en 5,90 meter breed)
- ligging tuin
- Gelegen op het oosten
Bergruimte
- Schuur / berging
- Aangebouwde stenen berging
- Voorzieningen
- Elektra
Parkeergelegenheid
- Soort parkeergelegenheid
- Openbaar parkeren
Energieverbruik in Den Haag
Energielabel deze woning
Energielabel A
Publicatie energielabel: 14-10-2016
Stroomverbruik per jaar
(Gemiddelde tussenwoning in Den Haag)
Gasverbruik per jaar
(Gemiddelde tussenwoning in Den Haag)
* Cijfers zijn afkomstig van het CBS en bedoeld als indicatie en kunnen verschillen voor deze woning
Indicatie hypotheeklasten
Eigen inleg:
Spaargeld / overwaarde
Rente:
Laagste 10-jaars rente
Laagste 10-jaars rente
2,98% - Centraal Beheer Groen... - NHG
3,2% - Argenta Groen Hypotheek... - 80%
Laagste 20-jaars rente
3,19% - Centraal Beheer Groen... - NHG
3,57% - Argenta Groen Hypothee... - 80%
Laagste 30-jaars rente
3,34% - Centraal Beheer Groen... - NHG
3,74% - Argenta Groen Hypothee... - 80%
Hypotheek:
Bruto maandlasten: € 0 p/m
Netto maandlasten: € 0 p/m
Hoe berekenen we dit?
Het rentepercentage is gebaseerd op de laagste 10 jaars vaste rente voor één hypotheekdeel. De vermelde rente (3.2% zonder NHG) is gecontroleerd op 19-12-2025. Deze berekening is gebaseerd op een annuïteitenhypotheek die volledig wordt afgelost, waarbij de maandlasten gedurende de gehele looptijd gelijk blijven. De werkelijke rente en netto maandlasten kunnen variëren, afhankelijk van uw persoonlijke situatie en de hypotheekverstrekker. Raadpleeg een financieel adviseur voor een nauwkeurige berekening en advies. Aan deze berekening kunnen geen rechten worden ontleend; het dient enkel als indicatie.
Documentatie
Kadastrale kaart
Leefomgeving
Plattegronden PDF
Bm25-energielabela
Lijstvanzaken-5767
Meetrapport-bellemeerstraat-25-den-haag
Vragenlijstb-5767
Bms25-brochure-kleinebestand
Brochure
WOZ waarderapport
BAG uittreksel
Bezoek onze website
Bezichtiging
Bod uitbrengen
Waardebepaling
Zoekopdracht
Alles downloaden
Zonnegrenzen bekijken
Op de kaart
Inwoners in Den Haag
Cijfers voor postcodegebied 2493
- Totaal aantal inwoners
- 8235 inwoners
- Mannen
- 50%
- Vrouwen
- 50%
Inwoners in Den Haag
Cijfers voor postcodegebied 2493
- tot 15 jaar
- 28%
- 15 tot 25 jaar
- 12%
- 25 tot 35 jaar
- 30%
- 45 tot 65 jaar
- 26%
- 65 en ouder
- 5%
Huishoudens in Den Haag
Cijfers voor postcodegebied 2493
- Eenpersoons zonder kinderen
- 17%
- Meerpersoons zonder kinderen
- 18%
- Huishoudens zonder kinderen
- 35%
Huishoudens in Den Haag
Cijfers voor postcodegebied 2493
- Huishoudens met één kind
- 11%
- Huishoudens met meerdere kinderen
- 55%
- Huishoudens met kinderen
- 66%
Woningen in Den Haag
Cijfers voor postcodegebied 2493
- Woningen voor 1945
- 1%
- Woningen tussen 1945 en 1965
- 1%
- Woningen tussen 1965 en 1975
- 1%
- Woningen tussen 1975 en 1985
- 1%
- Woningen tussen 1985 en 1995
- 1%
Woningen in Den Haag
Cijfers voor postcodegebied 2493
- Woningen tussen 1995 en 2005
- 13%
- Woningen tussen 2005 en 2015
- 80%
- Woningen na 2015
- 5%
- Huurwoningen
- 30%
- Koopwoningen
- 70%
Overige in Den Haag
Cijfers voor postcodegebied 2493
- Gemiddelde WOZ waarde
- € 390.000,-
- Personen onder de 65 met uitkering
- 5%
Overige in Den Haag
Cijfers voor postcodegebied 2493
- Adressen per km²
- 1460
- Stedelijkheid (schaal 1 op 5)
- 60%
Korte feiten over Den Haag
Den Haag , ook wel 's-Gravenhage genoemd, is de hoofdstad van de provincie Zuid-Holland en met 562.446 inwoners (31 januari 2023, bron: CBS) de op twee na grootste gemeente van Nederland, na Amsterdam en Rotterdam. Alhoewel Den Haag niet de hoofdstad van Nederland is, dat is Amsterdam, is het wel de residentie (regeringszetel) en fungeert het in veel opzichten als hoofdstad.
Makelaarscentrum Leidschenveen
Indien u vragen heeft of u wilt een bezichtiging inplannen, dan kunt u gebruik maken van het formulier hiernaast. Er zal daarna op korte termijn contact met u worden opgenomen.
Koraalrood 153 (bezoekadres)
2718 SB, Zoetermeer
070 326 5476 robverhoeven@makelaarscentrum.nl www.makelaarscentrum-leidschenveen.nlContact opnemen
Makelaarscentrum Leidschenveen
"Plaats het maar op mijn bord," zegt Rob Verhoeven, een makelaar die al jarenlang in Leidschenveen woont en werkt. Hij heeft zich gespecialiseerd in deze aantrekkelijke wijk van Den Haag en is een expert in het begeleiden van zowel aankoop- als verkoopprocessen. "Ik heb de ontwikkeling van deze wijk van dichtbij meegemaakt. Ik ken sommige delen zelfs beter dan mijn eigen straat," vertelt hij met een glimlach.
Rob's grondige kennis van Leidschenveen heeft al veel mensen geholpen hun ideale woning te vinden of hun huis sneller dan verwacht te verkopen, vaak tegen prijzen die de verwachtingen overtroffen. Wat is zijn geheim? Rob zet altijd dat extra stapje voor zijn klanten. "U kunt mij echt alles vragen over het kopen of verkopen van een huis. En natuurlijk kunt u uw woning aan mij toevertrouwen als u dat overweegt 😊."
Nieuwste reviews
-
Martijn van Etten
Rob reageert snel, komt altijd afspraken na, communiceert proactief en past waar nodig de strategie aan. We hadden een onverwacht valse star...
-
Alexander van de Ven
Rob heeft ons huis al binnen een week verkocht. We zijn hem zeer dankbaar voor zijn vriendelijkheid, deskundigheid en professionaliteit.
-
Patricia van Delft
We zijn erg tevreden over Rob. De communicatie was duidelijk en prettig, en we voelden ons gedurende het hele verkoopproces goed begeleid. H...